借りる
事務所・店舗を借りる
買う
建てる
FAQ
お知らせ
入居者様専用
仲介業者様専用
株式会社リネア建築企画
03-3401-4511
電話受付:10:00~18:00
株式会社リネア建築企画
03-3401-4511
お問合せ
借りる
事務所・店舗を借りる
買う
建てる
FAQ
お知らせ
入居者様専用
Tabi/世界の建築
会社案内
借りる
事務所・店舗を借りる
買う
建てる
FAQ
お知らせ
入居者様専用
お問合せ
会社案内
アクセスマップ
採用情報
メディア掲載
集合住宅を建てたい貸したいオーナー様へ
入居申込について
仲介業者様専用
個人情報保護方針
サイトポリシー
借りる
事務所・店舗を借りる
FAQ
TOP
借りる
COURETTE
部屋一覧
201
矢口渡
武蔵新田
蓮沼
蒲田
COURETTE
クレット
新築
DESIGN
中山眞琴アーキテクツ
ACCESS
矢口渡駅 徒歩6分
武蔵新田駅 徒歩10分
蓮沼駅 徒歩17分
蒲田駅 徒歩28分
POINT
全戸南向き
天井高2.6~3m
収納充実・インターネット無料
SPEC
RC造3階建
天井が高い
契約予定
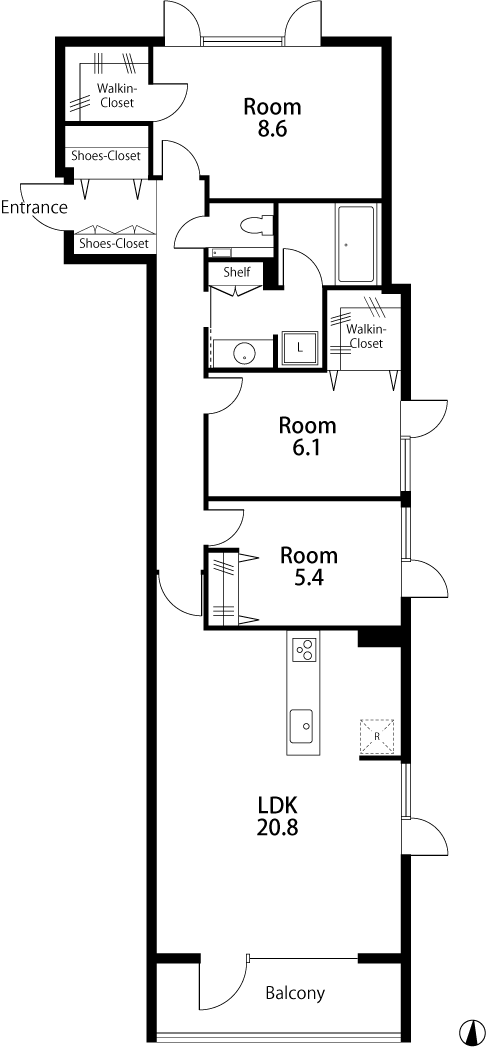
201
賃料: 285,000円
管理費: 0円
面積:95.71㎡
プラン:3LDK
敷金: 賃料の1ヶ月分
礼金: なし
備考:近隣駐車場紹介可:27,500円(税込)屋外自走式・屋根なし
礼金0・フリーレント1ヶ月キャンペーン実施中です
問い合わせをする
印刷する
所在地・交通
物件名
COURETTE
クレット
所在地
東京都大田区矢口2
交通機関
東急多摩川線 矢口渡駅 徒歩6分
東急多摩川線 武蔵新田駅 徒歩10分
東急池上線 蓮沼駅 徒歩17分
JR京浜東北線 蒲田駅 徒歩28分
建築概要
構造規模
RC造3階建
総戸数
14戸
竣工年
2025年 3月
外装
コンクリート打放+塗装
内装
床:フローリング(ウォルナット複層)・長尺シート 壁:クロス貼・コンクリート打放
設計
中山眞琴アーキテクツ
施工
株式会社平成建設
設備等
設備
エレベーター・モニタ付オートロック・宅配ボックス・エアコン・キッチン(IH)・食器洗浄機(105・201・205・301・305のみ)・オートバス(追焚機能有)・浴室暖房乾燥機・温水洗浄便座・インターネット(イッツコム※下り2Gbps、上り1Gbps、棟内1Gbpsタイプ・使用料無料・他回線引込不可)
その他
敷地内ゴミ置場・防犯カメラ
※2025年度グッドデザイン賞 受賞
駐車場
有 敷金1ヶ月・仲介手数料1.10ヶ月 ¥33,000-(税込) 屋外自走式(屋根あり)
空き確認要
駐輪場
有 各住戸1台 使用料無料 屋外(屋根なし)
空き確認要
バイク
有 敷金1ヶ月・仲介手数料1.10ヶ月 ¥11,000-(税込)屋外自走式(屋根あり)
空き確認要
賃貸条件・その他
敷金
賃料の1ヶ月分
礼金
賃料の1ヶ月分
解約償却
賃料の1ヶ月分
更新料
新賃料の1ヶ月分
仲介手数料
賃料の1.10ヶ月分
契約形態
普通借家契約
契約期間
2年間
その他
①SOHO相談(登記不可)
②賃貸保証加入要(フォーシーズ)
収納代行手数料月額¥330-(税込)
③緊急連絡先要
④全館禁煙
損害保険
指定の総合保険に加入頂きます
取引態様
専任媒介
情報更新日
2025年12月04日
次回更新日
随時
googleMapでみる
お知らせ
COURETTE(新築) 2025年度グッドデザイン賞を受賞しました
3LDK(95.71㎡)タイプのみ、募集中となります。
周辺情報・関連リンク
GOOD DESIGN AWARD 2025受賞
カフェ 燈日
UCCIARE !!!
オーケー矢口店
スポーツオアシス 多摩川(ジム&サウナ)
グルグルベーカリー
Sandwiches Marco
KNOT
ご注意事項
・写真ギャラリー等の画像は、募集中以外の部屋・モデルルーム・工事中の写真やイメージ画像も含みます。家具 ・調度品は付帯しません。
・「即入居可」と表示されている場合でもクリーニング等でご入居時期がずれる事がございます。
・掲載中の物件がすでに申込・成約済の場合もありますので最新情報はお問い合わせください。
・携帯電話の電波状況は、ご使用される機器にて室内確認をお願いいたします。
・契約時に仲介手数料として借室及び駐車場賃料の1.10ヶ月分を申し受けます。
・税率改正後は改正税率に準じます。
・掲載情報と現況が異なる場合は現況を優先いたします。
・当サイトに掲載されている画像、間取り図面、テキストなどのあらゆる内容の無許可転載・転用を禁止いたします。
・貸室の専有および共用部を民泊・一時貸借・シェアハウスなど、不特定、第三者を居住宿泊または滞在させる行為は、長期・短期、有償無償を問わずお断りいたします。
TOP
借りる
COURETTE
部屋一覧
201
前のページに戻る
路線・駅を選択
複数選択可
決定
エリアを選択
複数選択可
東京都内
都心エリア
港区、千代田区、中央区、新宿区、文京区、渋谷区
城南エリア
世田谷区、目黒区、大田区、品川区
城北エリア
豊島区、板橋区、北区
城西エリア
中野区、杉並区、練馬区
城東エリア
江東区、墨田区、江戸川区、足立区、台東区、荒川区、葛飾区
23区以外の東京都内
関東近郊
神奈川県
千葉県
埼玉県
北関東エリア
関東(都内も含む)以外のエリア
すべてのエリアを選ぶ
決定