内覧可 201
-
賃料
:
127,000円
管理費: 5,000円 -
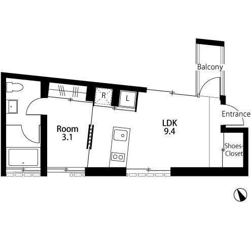
面積:28.83㎡
プラン:1LDK