お知らせ

お知らせ

twitter

サヴォア邸

photo

コルビュジェ建築に触れれば触れるほど、彼は単純に人々が感動し豊かな生活を送ることが出来るための、ミニマムな構造物を意識してデザインしてきたように思えます。
そこが近代建築バージョンの中で「わび」を感じさせてくれるので、日本人の私は好きなのかもしれません。


サヴォア邸(1931) ル・コルビュジエ

サヴォア邸は
コルビュジェの初期の作品で、近代建築5原則が実現されている近代建築史上、最も有名な住宅の一つ。
私たち日本人としては昭和6年にこれが建っていたのかと考えると、ただただ驚くばかりですね。
近代建築の5原則は1926年、昭和元年にはまとめられていたそうです。

かってに想像すると、彼はとても感受性の豊かな合理主義者で、前回ご紹介させていただいたようにアーティストとして物事を構築・具現化して行く過程から、自然とこうなってしまうのだろうと思います。

本人は大変気難しい人物だったようですが、その反面、きっと人間に魅力を感じ、人間が大好きだったのでしょうね。





 





南東からのファサードです。








 


回り階段とスロープ。この2つの上階へのアプローチが建築的プロムナードを豊かにしています。





 



サヴォア邸は保険会社のオーナー、ピエール・サヴォア氏の週末住宅としてパリ郊外のポアシーに建てられました。
当時は施工技術が未熟だったため、漏水など様々なトラブルにみまわれたそうです。





 

 
 


屋上庭園は、外部から見えないプライバシーが確保された内庭として構想されています。


















 





 


ローマ時代の石風呂をイメージします。
ヨーロッパで生まれた人たちには、懐かしい雰囲気があるのだと思いますが、私には痛そうな雰囲気があります。











南のファサードです。


 
 



 


 







西のファサード。


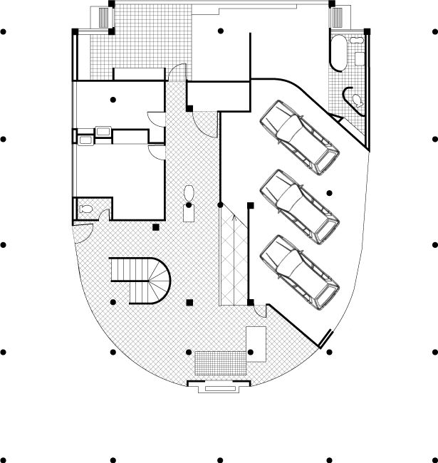
1F





2F




 

3F



 
Tabi/世界の建築 2010年6月
前のページに戻る